Rif: TD249
PIACENZA
PIACENZA - zona Via Taverna - Ospedale
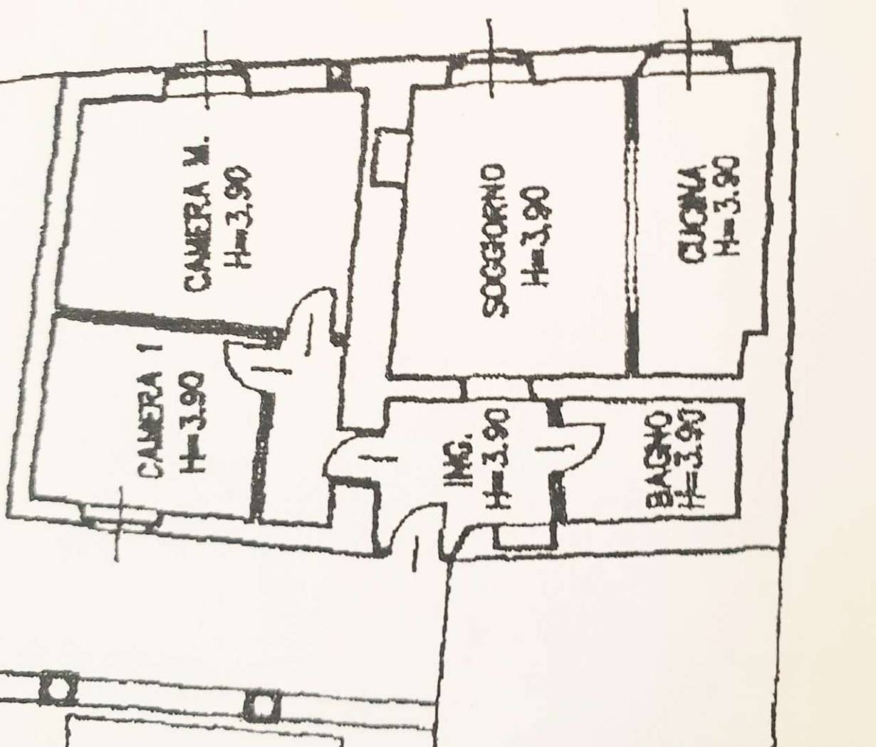
Rif: TD249 - A due passi da Piazza Borgo affascinante appartamento al piano terra - in palazzo antico ristrutturato - con ingresso indipendente - composto da: cucina arredata che si apre su un luminoso soggiorno - due camere da letto spaziose - un bagno elegante con vasca e doccia - ripostiglio e cantina - Posto auto di proprietà nel cortile - Riscaldamento autonomo - Soffitti a volta - Per ulteriori informazioni o presa visione T. 335.6440333 - 337.602068 RIF. TD249
Hai uno o piu' appartamenti o un'immobile di qualsiasi natura? Vuoi vendere velocemente? Rivolgiti con fiducia, ci troVi:
in Piacenza Via Taverna n. 238 (preferibilmente previo appuntamento) – potrete disporre di PARCHEGGIO PRIVATO
numeri fissi ufficio t. 0523.499325 cell. 3356440333 337602068
*Mail: mail@maffiniimmobilare.com
*Sito: www.maffiniimmobiliare.it
Agenzia Storica in Piacenza con conoscenze approfondite del territorio e degli usi. Competenza nella vendita in loco e non solo, specialisti della negoziazione che soddisfi ambo le parti.
*Siamo disponibili dal Lunedì al Venerdì dalle 9.00 alle 12.30 e dalle 15.00 alle 19.00
Sabato dalle 9.00 alle 12.30
Domenica Chiuso
*A disposizione in particolari esigenze, anche in orari diversi, come pausa pranzo o nel weekend (previo appuntamento).
*Servizio: home staging (abbellimento immobile per la vendita)
*Servizio: property finder (ricerca diretta ed esclusiva di immobili adeguati alla richiesta specifica)
*Servizio: valutazione immobili gratuita
*Servizio tecnico: affiancati dai professionisti necessari
*CONSULENZA MUTUO affiancati da istituti di credito e/o da brokers
COLLOQUI gratuiti ed eventuale collaborazione con liberi professionisti quali: geometri, architetti, imprenditori edili, notai, amministratori, avvocati qualora servissero per l'eventuale facilitazione di compravendite o locazioni, che lo necessitassero.
Hai uno o piu' appartamenti o un'immobile di qualsiasi natura? Vuoi vendere velocemente? Rivolgiti con fiducia, ci troVi:
in Piacenza Via Taverna n. 238 (preferibilmente previo appuntamento) – potrete disporre di PARCHEGGIO PRIVATO
numeri fissi ufficio t. 0523.499325 cell. 3356440333 337602068
*Mail: mail@maffiniimmobilare.com
*Sito: www.maffiniimmobiliare.it
Agenzia Storica in Piacenza con conoscenze approfondite del territorio e degli usi. Competenza nella vendita in loco e non solo, specialisti della negoziazione che soddisfi ambo le parti.
*Siamo disponibili dal Lunedì al Venerdì dalle 9.00 alle 12.30 e dalle 15.00 alle 19.00
Sabato dalle 9.00 alle 12.30
Domenica Chiuso
*A disposizione in particolari esigenze, anche in orari diversi, come pausa pranzo o nel weekend (previo appuntamento).
*Servizio: home staging (abbellimento immobile per la vendita)
*Servizio: property finder (ricerca diretta ed esclusiva di immobili adeguati alla richiesta specifica)
*Servizio: valutazione immobili gratuita
*Servizio tecnico: affiancati dai professionisti necessari
*CONSULENZA MUTUO affiancati da istituti di credito e/o da brokers
COLLOQUI gratuiti ed eventuale collaborazione con liberi professionisti quali: geometri, architetti, imprenditori edili, notai, amministratori, avvocati qualora servissero per l'eventuale facilitazione di compravendite o locazioni, che lo necessitassero.






