Rif: TD313
PIACENZA
PIACENZA - zona Farnesiana
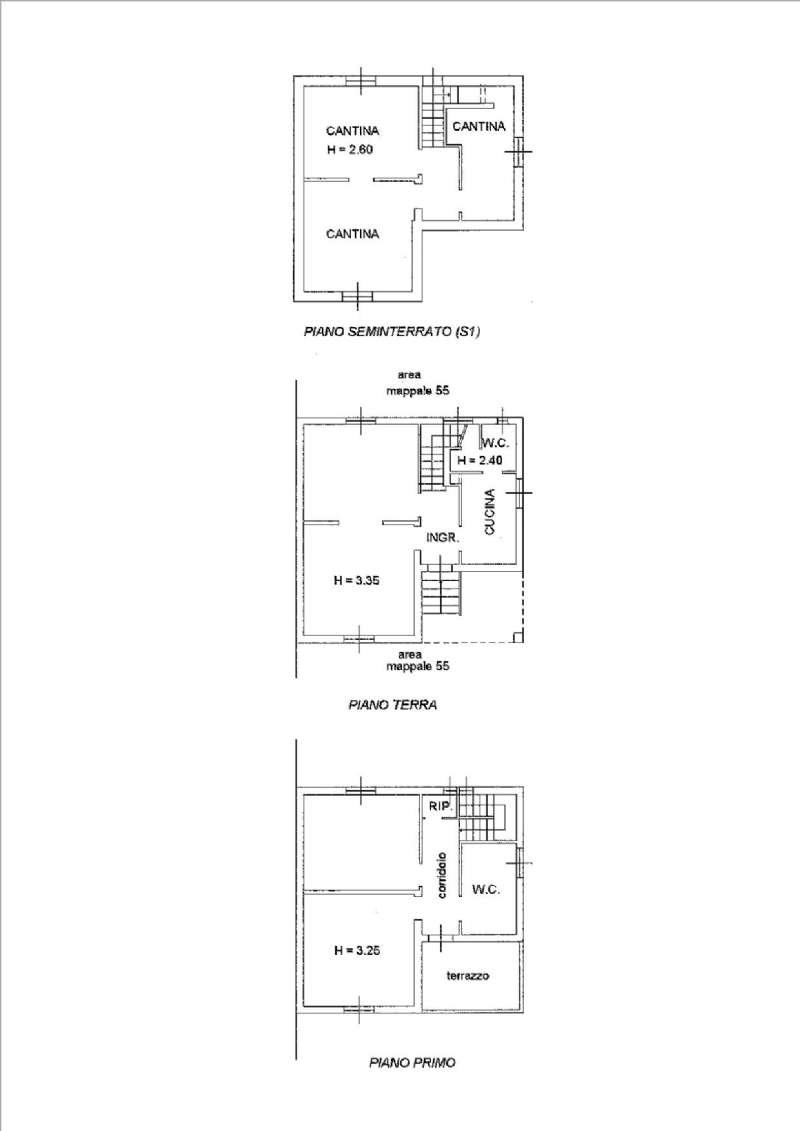
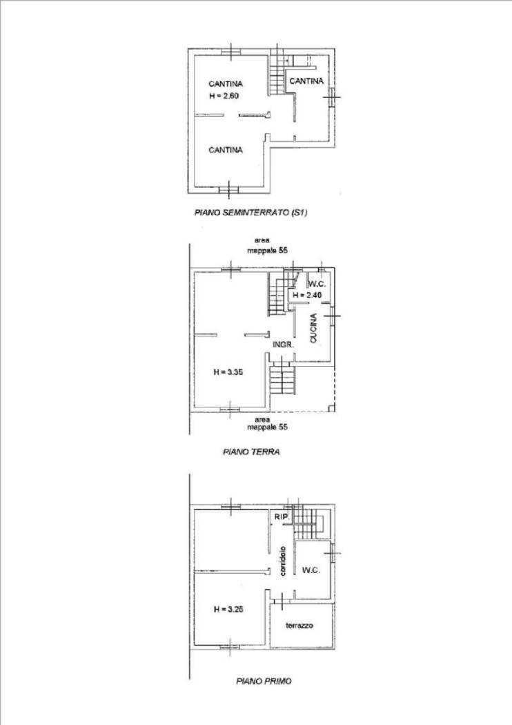
Rif: TD313 - Pressi via Duca degli Abruzzi in Via molto tranquilla e residenziale villa esclusiva libera su 3 lati con giardino e terrazza. Al piano villa: ingresso, soggiorno, cucina, bagno, al piano primo: 2 camere matrimoniali grandi, bagno spazioso, ampia terrazza, cantina, autorimessa doppia parallela. Da vedere! Finiture curate. Per ulteriori informazioni o presa visione t. 337.602068 - 335.6440333 RIF. TD313
Hai uno o piu' appartamenti o un'immobile di qualsiasi natura? Vuoi vendere velocemente? Rivolgiti con fiducia, ci troVi:
in Piacenza Via Taverna n. 238 (previo appuntamento, se possibile) – potrete usare il PARCHEGGIO telefonando 0523.499325
numeri fissi ufficio t. 0523.499325 cell. 3356440333 337602068
*Mail: mail@maffiniimmobilare.com
*Sito: www.maffiniimmobiliare.it
Agenzia Storica in Piacenza con conoscenze approfondite del territorio e degli usi, competenza nella vendita in loco e non solo, specialisti della negoziazione che soddisfi le parti
*Siamo disponibili dal Lunedì al Venerdì dalle 9.00 alle 12.30 e dalle 15.00 alle 19.00
Sabato mattina aperto
Domenica Chiuso
*A disposizione in particolari esigenze, anche in orari diversi, come pausa pranzo o nel weekend (previo appuntamento).
*Servizio: home staging (abbellimento immobile per la vendita)
*Servizio: property finder (ricerca diretta ed esclusiva di immobili adeguati alla richiesta specifica)
*Servizio: valutazione gratuita
*Servizio tecnico: affiancati dai professionisti necessari
*CONSULENZA MUTUO gratuita o molto concorrenziale affiancati da brokers veloci e professionali
*COLLOQUI gratuiti ed eventuale collaborazione efficiente con liberi professionisti quali: geometri, architetti, imprenditori edili, notai, amministratori, avvocati qualora servissero per l'eventuale facilitazione di compravendite o locazioni, che lo necessitassero.
*PERSONALE PER RISTRUTTURARE E LIBERARE DA COSE E MOBILI
Hai uno o piu' appartamenti o un'immobile di qualsiasi natura? Vuoi vendere velocemente? Rivolgiti con fiducia, ci troVi:
in Piacenza Via Taverna n. 238 (previo appuntamento, se possibile) – potrete usare il PARCHEGGIO telefonando 0523.499325
numeri fissi ufficio t. 0523.499325 cell. 3356440333 337602068
*Mail: mail@maffiniimmobilare.com
*Sito: www.maffiniimmobiliare.it
Agenzia Storica in Piacenza con conoscenze approfondite del territorio e degli usi, competenza nella vendita in loco e non solo, specialisti della negoziazione che soddisfi le parti
*Siamo disponibili dal Lunedì al Venerdì dalle 9.00 alle 12.30 e dalle 15.00 alle 19.00
Sabato mattina aperto
Domenica Chiuso
*A disposizione in particolari esigenze, anche in orari diversi, come pausa pranzo o nel weekend (previo appuntamento).
*Servizio: home staging (abbellimento immobile per la vendita)
*Servizio: property finder (ricerca diretta ed esclusiva di immobili adeguati alla richiesta specifica)
*Servizio: valutazione gratuita
*Servizio tecnico: affiancati dai professionisti necessari
*CONSULENZA MUTUO gratuita o molto concorrenziale affiancati da brokers veloci e professionali
*COLLOQUI gratuiti ed eventuale collaborazione efficiente con liberi professionisti quali: geometri, architetti, imprenditori edili, notai, amministratori, avvocati qualora servissero per l'eventuale facilitazione di compravendite o locazioni, che lo necessitassero.
*PERSONALE PER RISTRUTTURARE E LIBERARE DA COSE E MOBILI






