Rif: TD318
PIACENZA
PIACENZA - zona Via Taverna - Ospedale
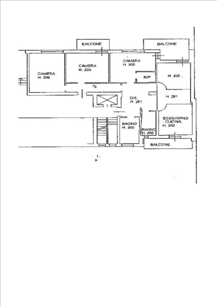
Rif: TD318 - Pressi via San Giacomino - appartamento di circa 168 mq, ideale per chi cerca spazio e comfort. Situato al piano rialzato di un elegante edificio con ascensore, l'immobile vanta un ingresso accogliente che conduce a un luminoso soggiorno con terrazza.
Le tre ampie camere da letto offrono privacy, mentre i due bagni, rifiniti con ceramica chiara, di cui uno con vasca idromassaggio.
Le finiture in parquet in tutta la superficie conferiscono calore agli ambienti, mentre gli infissi a doppio vetro assicurano un'ottima insonorizzazione e isolamento termico. L'appartamento è dotato di aria condizionata canalizzata e riscaldamento autonomo a gas naturale, garantendo un comfort ottimale in ogni stagione. Completa la proprietà una cantina e un garage, inclusi nel prezzo, per una maggiore comodità.
Situato in una zona ben servita, questo appartamento è la scelta perfetta per famiglie o professionisti che desiderano vivere in un ambiente spazioso e funzionale, per la possibilità dell'apertura di un altro ingresso. Non perdere l'opportunità di visitarlo! Classe energetica D, consumo 170,61 kWh/m² anno. Contattaci per maggiori informazioni e per fissare un appuntamento T. 337.602068 RIF. TD318
Hai uno o piu' appartamenti o un'immobile di qualsiasi natura? Vuoi vendere velocemente? Rivolgiti con fiducia, ci troVi:
in Piacenza Via Taverna n. 238 (preferibilmente previo appuntamento) – potrete disporre di PARCHEGGIO PRIVATO
numeri fissi ufficio t. 0523.499325 cell. 3356440333 337602068
*Mail: mail@maffiniimmobilare.com
*Sito: www.maffiniimmobiliare.it
Agenzia Storica in Piacenza con conoscenze approfondite del territorio e degli usi. Competenza nella vendita in loco e non solo, specialisti della negoziazione che soddisfi ambo le parti.
*Siamo disponibili dal Lunedì al Venerdì dalle 9.00 alle 12.30 e dalle 15.00 alle 19.00
Sabato dalle 9.00 alle 12.30
Domenica Chiuso
*A disposizione in particolari esigenze, anche in orari diversi, come pausa pranzo o nel weekend (previo appuntamento).
*Servizio: home staging (abbellimento immobile per la vendita)
*Servizio: property finder (ricerca diretta ed esclusiva di immobili adeguati alla richiesta specifica)
*Servizio: valutazione immobili gratuita
*Servizio tecnico: affiancati dai professionisti necessari
*CONSULENZA MUTUO affiancati da istituti di credito e/o da brokers
COLLOQUI gratuiti ed eventuale collaborazione con liberi professionisti quali: geometri, architetti, imprenditori edili, notai, amministratori, avvocati qualora servissero per l'eventuale facilitazione di compravendite o locazioni, che lo necessitassero.
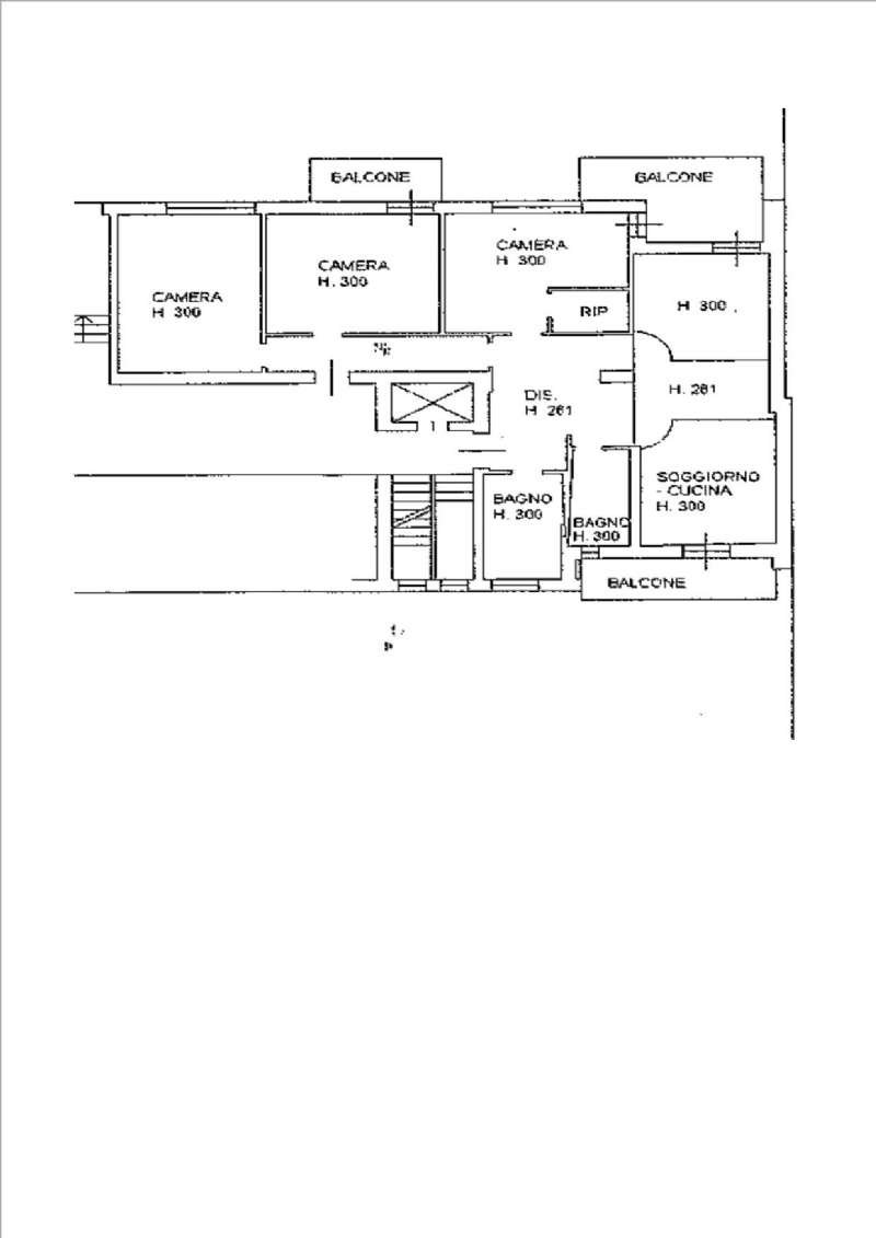
Le tre ampie camere da letto offrono privacy, mentre i due bagni, rifiniti con ceramica chiara, di cui uno con vasca idromassaggio.
Le finiture in parquet in tutta la superficie conferiscono calore agli ambienti, mentre gli infissi a doppio vetro assicurano un'ottima insonorizzazione e isolamento termico. L'appartamento è dotato di aria condizionata canalizzata e riscaldamento autonomo a gas naturale, garantendo un comfort ottimale in ogni stagione. Completa la proprietà una cantina e un garage, inclusi nel prezzo, per una maggiore comodità.
Situato in una zona ben servita, questo appartamento è la scelta perfetta per famiglie o professionisti che desiderano vivere in un ambiente spazioso e funzionale, per la possibilità dell'apertura di un altro ingresso. Non perdere l'opportunità di visitarlo! Classe energetica D, consumo 170,61 kWh/m² anno. Contattaci per maggiori informazioni e per fissare un appuntamento T. 337.602068 RIF. TD318
Hai uno o piu' appartamenti o un'immobile di qualsiasi natura? Vuoi vendere velocemente? Rivolgiti con fiducia, ci troVi:
in Piacenza Via Taverna n. 238 (preferibilmente previo appuntamento) – potrete disporre di PARCHEGGIO PRIVATO
numeri fissi ufficio t. 0523.499325 cell. 3356440333 337602068
*Mail: mail@maffiniimmobilare.com
*Sito: www.maffiniimmobiliare.it
Agenzia Storica in Piacenza con conoscenze approfondite del territorio e degli usi. Competenza nella vendita in loco e non solo, specialisti della negoziazione che soddisfi ambo le parti.
*Siamo disponibili dal Lunedì al Venerdì dalle 9.00 alle 12.30 e dalle 15.00 alle 19.00
Sabato dalle 9.00 alle 12.30
Domenica Chiuso
*A disposizione in particolari esigenze, anche in orari diversi, come pausa pranzo o nel weekend (previo appuntamento).
*Servizio: home staging (abbellimento immobile per la vendita)
*Servizio: property finder (ricerca diretta ed esclusiva di immobili adeguati alla richiesta specifica)
*Servizio: valutazione immobili gratuita
*Servizio tecnico: affiancati dai professionisti necessari
*CONSULENZA MUTUO affiancati da istituti di credito e/o da brokers
COLLOQUI gratuiti ed eventuale collaborazione con liberi professionisti quali: geometri, architetti, imprenditori edili, notai, amministratori, avvocati qualora servissero per l'eventuale facilitazione di compravendite o locazioni, che lo necessitassero.






